
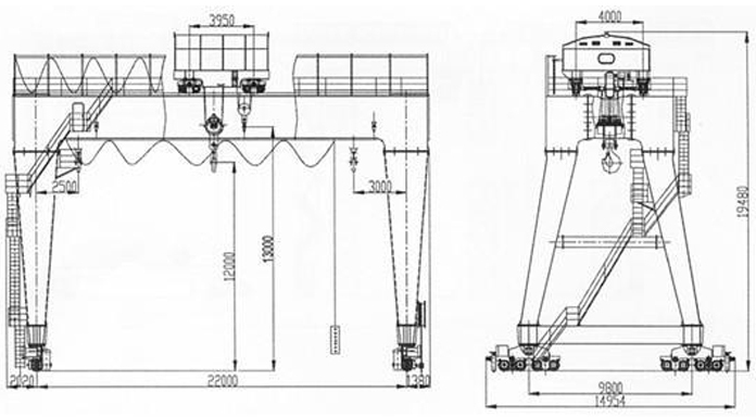
Heavy Lift Crane, Double Beam Gantry Crane 30 Ton
Tvöfaldur geisla kran með krókum er beitt utan vörugeymsla eða járnbrautar hliðar til að gera algengar lyftingar og affermingarverk. Þessi tegund af krani samanstendur af brú, stoðfótum, krana ferðastorg, vagn með sterkum lyftara, rafbúnaði og stýrikerfi. Eins og þungur skylda hönnun, það er hægt að nota mikið í alls konar iðnaðar sviði.
þungur lyftiborði, tvöfaldur geislahlaupskran 30 tonn
Tvöfaldur geisla kran með krókum er beitt utan vörugeymsla eða járnbrautar hliðar til að gera algengar lyftingar og affermingarverk. Þessi tegund af krani samanstendur af brú, stoðfótum, krana ferðastorg, vagn með sterkum lyftara, rafbúnaði og stýrikerfi. Eins og þungur skylda hönnun, það er hægt að nota mikið í alls konar iðnaðar sviði.






English
ไทย
Srbija jezik (latinica)
suomi
Svenska
Kreyòl Ayisyen
Ar hñä ar Keleitaluoaotuomi
한국어
اردو
Polski
türkiye
Indonesia





