
HD Gerð European Hoist Electric Single-girder Yfirhafnartæki
European Single Girder Overhead Crane er samningur lyftibúnaður sem hannaður og framleiðir í ströngu samræmi við FEM og DIN staðalinn, sem með háþróaðri tækni og fallegri hönnun. Skipt í almenna gerð og fjöðrunartegund, sem styður notkun á evrópskum stöðlum rafmagnshöft, hentugur fyrir vinnslu á vinnustað og vörugeymslu, stórum hlutum nákvæmni samkoma og öðrum stöðum.
HD Gerð European Hoist Electric Single-girder Yfirhafnartæki
Stutt lýsing:
European Single Girder Overhead Crane er samningur lyftibúnaður sem hannaður og framleiðir í ströngu samræmi við FEM og DIN staðalinn, sem með háþróaðri tækni og fallegri hönnun. Skipt í almenna gerð og fjöðrunartegund, sem styður notkun á evrópskum stöðlum rafmagnshöft, hentugur fyrir vinnslu á vinnustað og vörugeymslu, stórum hlutum nákvæmni samkoma og öðrum stöðum.
Það gæti mikið notað í vélum framleiðslu, málmvinnslu, jarðolíu, petrifaction, höfn, járnbraut, almenningsflug, matur, pappír gerð, smíði, rafeindatækni iðnaður verkstæði, vöruhús og önnur efni meðhöndlun aðstæður, esp. beitt til að meðhöndla efni sem þarf nákvæma staðsetningu, stórar íhlutir nákvæmar samsetningaraðstæður.
Ítarlegar myndir:
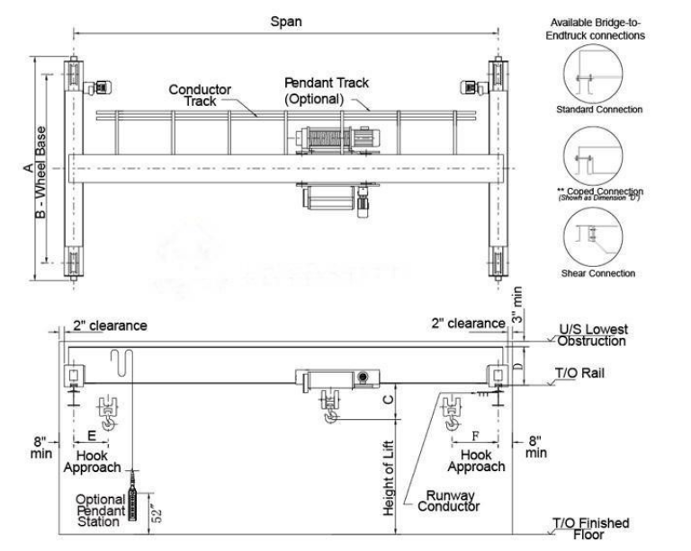
Teikning Teikning:
Tæknilegar þættir:
Span | m | 7.5 | 10.5 | 13,5 | 16,5 | 19.5 | 22.5 | 25,5 |
Stærð | t | 1 ~ 12.5t | ||||||
Heildarþyngd | kg | 1781 ~ 12086 | ||||||
Vagnarþyngd | kg | 405 ~ 740 | ||||||
Max. Hjólálag | kn | 13,5 ~ 90,94 | ||||||
Ferðalög | P24 ~ P43 | |||||||
Lyftihraði | m / mín | 0,8 / 5 | 0,8 / 5 | 0,8 / 5 | 0,8 / 5 | 0,8 / 5 | 0,8 / 5 | 0,8 / 5 |
Lyftihæð | m | ≥ 6 | ≥ 6 | ≥ 6 | ≥ 6 | ≥ 6 | ≥ 6 | ≥ 6 |
Heildarorkuorka | kw | 4,31 | 4,31 | 4,31 | 4,31 | 4,67 | 4,67 | 4,67 |
Kranhraði | m / mín | 3-30 | 3-30 | 3-30 | 3-30 | 3-30 | 3-30 | 3-30 |
Trolley hraði | m / mín | 2-20 | 2-20 | 2-20 | 2-20 | 2-20 | 2-20 | 2-20 |
Vinnuskylda | M5 / A5 |